Fantastic Investment Opportunity in Prime West Belfast Location
Income Generating Retail Unit - Currently Let at 800 pcm until 2028
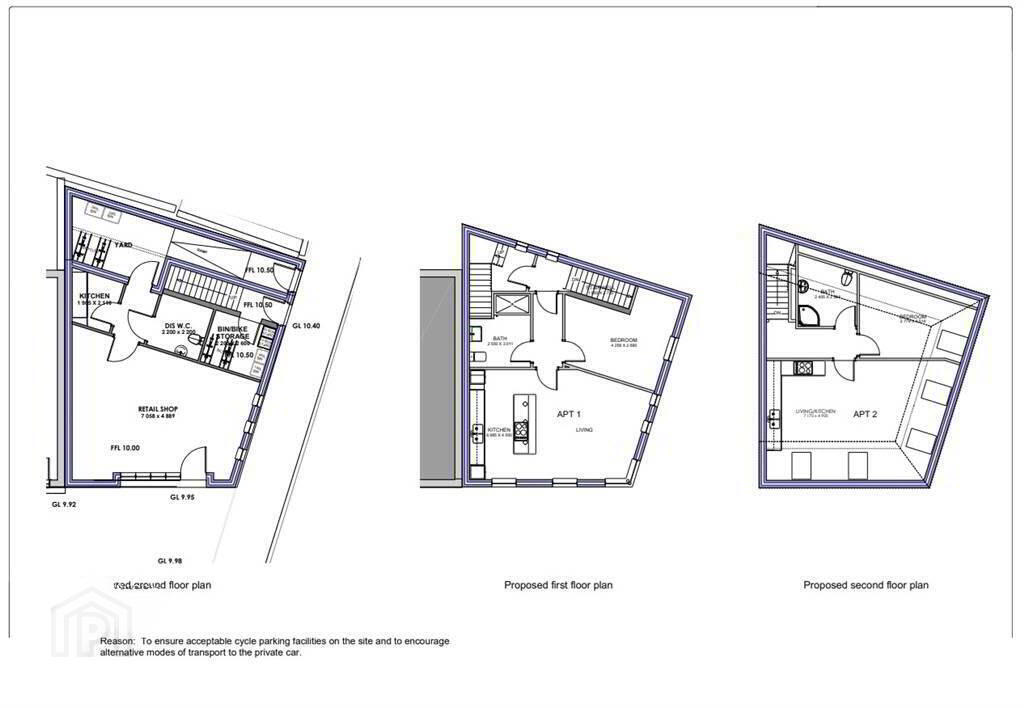
Planning Permission For Demolish and Rebuild - Retail & 2 x 1 Bed Apartments
Priced To Sell - Serious Enquiries Only
Additional Information
Income-Producing Development Opportunity – Prime Falls Road Position (Circa 7.7% Yield)
Occupying a prominent corner position on the Falls Road directly facing The Kennedy Centre Shopping Centre, this highly visible site benefits from constant passing vehicular traffic and strong pedestrian footfall throughout the day. This is one of West Belfast’s most established commercial locations.
The property currently comprises a single-storey retail unit with a long-established tenant in situ, producing £800 per month (£9,600 per annum) and offering an attractive gross yield of approximately 7.7% at the asking price. The tenant is secured in place until 2028, providing reliable, long-term income.
While the existing income is strong, the real value lies in the long-term enhancement of the property, with full planning permission already granted for redevelopment into a new-build commercial retail unit with two one-bedroom apartments above. This presents a clear opportunity to significantly increase overall rental income, or alternatively to sell the apartments individually, unlocking further capital value.
Full planning permission granted under reference LA04/2023/3217/F.
An ideal opportunity for investors seeking immediate income alongside genuine future upside