Gerard McClinton Estate Agent

535c Falls Road Belfast, BT11 9AA

Commercial Property For Sale

Price £124,950

Print additional images & map (disable to save ink)

falls road 9.jpg

Telephone:

028 9099 2884

View Online:

www.gerardmcclinton.co.uk/1053435

Key Information

Address 535c Falls Road Belfast, BT11 9AA
Price £124,950
Style Commercial Property
Status For sale

Features

  • Fantastic Investment Opportunity in Prime West Belfast Location
  • Income Generating Retail Unit - Currently Let at 800 pcm until 2028
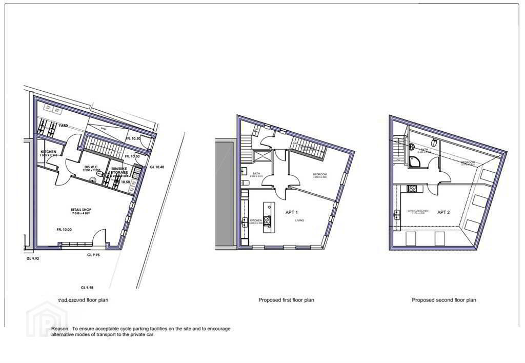
  • Planning Permission For Demolish and Rebuild - Retail & 2 x 1 Bed Apartments
  • Priced To Sell - Serious Enquiries Only

Additional Information

Income-Producing Development Opportunity – Prime Falls Road Position (Circa 7.7% Yield)

Occupying a prominent corner position on the Falls Road directly facing The Kennedy Centre Shopping Centre, this highly visible site benefits from constant passing vehicular traffic and strong pedestrian footfall throughout the day. This is one of West Belfast’s most established commercial locations.

The property currently comprises a single-storey retail unit with a long-established tenant in situ, producing £800 per month (£9,600 per annum) and offering an attractive gross yield of approximately 7.7% at the asking price. The tenant is secured in place until 2028, providing reliable, long-term income.

While the existing income is strong, the real value lies in the long-term enhancement of the property, with full planning permission already granted for redevelopment into a new-build commercial retail unit with two one-bedroom apartments above. This presents a clear opportunity to significantly increase overall rental income, or alternatively to sell the apartments individually, unlocking further capital value.

Full planning permission granted under reference LA04/2023/3217/F.

An ideal opportunity for investors seeking immediate income alongside genuine future upside

Offers Around 124,950
  • Gerard McClinton Estate Agent

    Gerard McClinton Estate Agent

    028 9099 2884

Photo Gallery

falls road 9.jpg falls road 11.jpg falls road 12.jpg falls road 4.jpg falls road 10.jpg 535 falls road 5.jpg falls road 3.jpg falls road 7.jpg falls road 8.jpg

Location

Visit www.gerardmcclinton.co.uk for further details.