Gerard McClinton Estate Agent

18a Glenavy Road Lisburn, BT28 3UP

5 Bed Detached House For Sale

Offers around £699,950

Print additional images & map (disable to save ink)

glenavy road front 2.jpg

Telephone:

028 9099 2884

View Online:

www.gerardmcclinton.co.uk/1058753

Key Information

Address 18a Glenavy Road Lisburn, BT28 3UP
Price Offers around £699,950
Style Detached House
Bedrooms 5
Receptions 3
Bathrooms 4
Heating Oil
EPC Rating C80/C80
Status For sale

Features

  • Approx. 3,000 sq ft of luxury, well-proportioned family living
  • Exclusive setting — one of just three detached homes
  • Flexible layout with up to 5 generous double bedrooms
  • Showstopping open-plan kitchen / dining / living hub
  • Heated outdoor swimming pool for resort-style living
  • Luxury Bathroom with 3-person infrared sauna for at-home wellness
  • High-spec finish throughout with premium detailing
  • Detached Garage with EV Charging Point
  • Super Convenient to Lisburn, Glenavy, Belfast & Belfast International Airport
  • Countryside views with Convenience, This Isn't Just a Home, Its a Lifestyle Upgrade

Additional Information

An exceptional detached residence on the ever-popular Glenavy Road, perfectly positioned on the fringe of the city centre and forming part of an exclusive cluster of just three detached homes. Extending to approximately 3,000 sq ft, this is a substantial, beautifully designed home that delivers space, quality and lifestyle in equal measure, ideal for modern family living.

From the moment you arrive, the sense of scale and finish is clear. The accommodation is bright, well-proportioned and highly versatile, offering the flexibility of up to five generous double bedrooms, making it perfectly suited to growing families, those working from home, or buyers who simply appreciate extra space.

The true hub of the home is the impressive open-plan kitchen, dining and living area — a fantastic social space designed for both relaxed day-to-day living and entertaining on a larger scale. Clean lines, quality fittings and a contemporary finish create a space that feels both luxurious and welcoming.

Specification throughout is notably high and future-focused, including Wi-Fi enabled remote heating controls, remote-control blinds, and colour-changing LED strip lighting across multiple rooms to set the perfect mood. Oil-fired central heating ensures comfort and efficiency year-round.

Externally, this home really sets itself apart. The heated outdoor swimming pool creates a resort-style feel for summer enjoyment, while the private three-person infrared sauna adds a touch of everyday luxury and wellness at home. The outdoor space complements the interior perfectly, offering a lifestyle many aspire to but rarely find.

Location wise, convenience is key — just a short drive to the city centre and within easy reach of excellent schools, shopping and a wide range of restaurants and amenities Lisburn has to offer.

Still benefiting from a structural warranty, this is a home that offers reassurance as well as style. This is more than a home, its a lifestyle upgrade
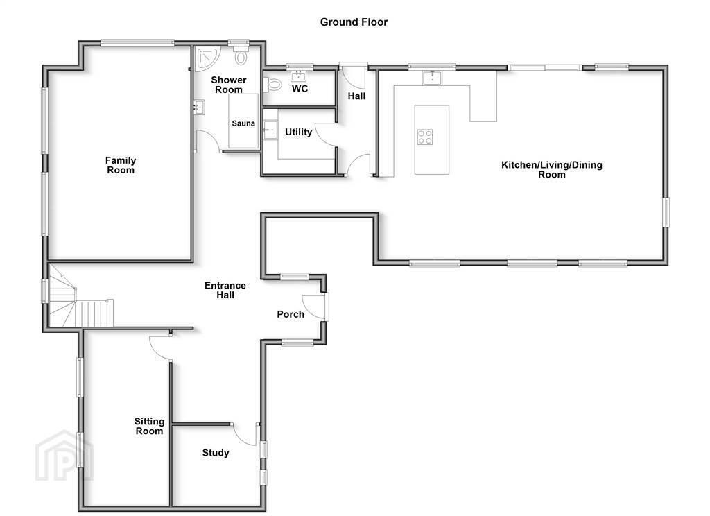
Entrance Hall
Composite door with matching side panels. Large porcelain tiled floor. Recessed spotlights. Ash "open tread" staircase with glazed balustrades.
Living Room 7.4 x 4.6 (24'3" x 15'1")
Feature media wall with glass front flame effect electric fire. Porcelain tiled floor. Recessed spotlights. Lighting plinth with colour changing LED strip lighting.
Open Plan Kitchen / Dining / Living 9.5 x 6.4 (31'2" x 20'11")
Large open plan area with vaulted ceiling, recessed spotlights and skylights. Range of high and low level grey handleless soft close units with contrasting quartz worktops and upstands with pull-up plug and USB sockets. Matching island unit with 'Elica' Nikola Tesla 4 ring induction hob with inbuilt extractor fan. Built-in storage and breakfast bar with integrated 'pop up' multi-plug/USB socket. One and a half inset 'Caple' sink unit with mixer tap with boiling water function and quartz drainer. Built-in storage and breakfast bar. 3 eye-level Samsung electric ovens including combination microwave oven, warming drawer. Space and plumbed for American style fridge freezer. Integrated 'Bosch' dishwasher, space for wine cooler. Large porcelain tiled floor continued throughout. LED multi-coloured strip lighting at kickboards, above units and under island and breakfast bar. Access to roofspace storage. TV point for wall mounted TV. Sliding PVC door to outside.
Rear Lobby
Composite half PVC double glazed rear door, recessed spotlights, large porcelain tiled floor.
Utility Room 2.177 x 2.4 (7'1" x 7'10")
Range of high and low level grey units with contrasting quartz worktops and upstands. Inset stainless steel sink unit with mixer tap. Plumbed for washing machine. Space for tumble dryer. Large porcelain tiled floor. Extractor fan.
Cloakroom
Low flush WC. Vanity unit with mixer tap and tiled splashback. Large porcelain tiled floor.
Shower Room
Fully tiled corner shower with mains fittings. Vanity sink unit with mixer tap. 3 person infra-red sauna. Recessed spotlights. Half tiled walls. Tiled floor. Chrome towel radiator. Extractor fan.
Bedroom 5 / Family Room 6 x 2.9 (19'8" x 9'6")
Double glazed window, Laminate floor.
Bedroom 4 / Study / Playroom / Rec 3 3.75 x 2.95 (12'3" x 9'8")
Double glazed window, Laminate floor.
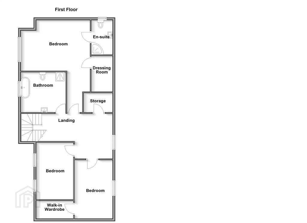
First Floor Landing
Open landing with access to roofspace via folding wooden ladder. Recessed spotlights. Large walk-in hotpress.
Master Bedroom 7.5 x 5.4 (24'7" x 17'8")
Recessed spotlights. TV point for wall mounted TV. Walk-in dressing room with fitted hanging space, drawers and dresser. Recessed spotlights.
En Suite Shower Room
Corner shower with mains fittings to include telephone and drench shower heads. Large vanity unit with mixer tap and tiled splashback. Low flush WC. Tiled floor and skirting. Chrome towel radiator. Recessed spotlights. Extractor.
Bedroom 2 4.5 x 3 (14'9" x 9'10")
Double glazed window, Walk-in wardrobe.
Bedroom 3 4.4 x 2.9 (14'5" x 9'6")
Family Bathroom
Large family bathroom with free standing egg shaped bath with waterfall mixer tap. Vanity sink unit with waterfall mixer tap. Low flush WC. Fully tiled corner shower with mains fittings to include telephone and drench shower heads. Large towel radiator. Feature tiled wall. Remaining walls half tiled. Tiled floor. Recessed spotlights. Extractor fan.
Outside
Entrance with wiring and mechanics for an electric gate, tarmac driveway with ample parking for multiple cars, motorhome, boats etc. Electric vehicle charger and detached garage
To the rear is an enclosed garden with outdoor lighting, fire, seating area and heated swimming pool
  • Gerard McClinton Estate Agent

    Gerard McClinton Estate Agent

    028 9099 2884

Photo Gallery

glenavy road front 2.jpg glenavy road front.jpg 18B Glenavy Road-3.jpg glenavy road front 7.jpg 18B Glenavy Road-22.jpg 18B Glenavy Road-25.jpg 18B Glenavy Road-31.jpg 18B Glenavy Road-32.jpg glenavy road living room 3.jpg 18B Glenavy Road-43.jpg 18B Glenavy Road-44.jpg 18B Glenavy Road-47.jpg 18B Glenavy Road-48.jpg 18B Glenavy Road-49.jpg 18B Glenavy Road-50.jpg 18B Glenavy Road-51.jpg 18B Glenavy Road-53.jpg 18B Glenavy Road-58.jpg 18B Glenavy Road-59.jpg 18B Glenavy Road-60.jpg 18B Glenavy Road-61.jpg 18B Glenavy Road-62.jpg 18B Glenavy Road-63.jpg 18B Glenavy Road-64.jpg 18B Glenavy Road-66.jpg 18B Glenavy Road-67.jpg 18B Glenavy Road-68.jpg 18B Glenavy Road-70.jpg 18B Glenavy Road-72.jpg 18B Glenavy Road-75.jpg 18B Glenavy Road-76.jpg 18B Glenavy Road-79.jpg 18B Glenavy Road-81.jpg 18B Glenavy Road-86.jpg 18B Glenavy Road-94.jpg 18B Glenavy Road-95.jpg 18B Glenavy Road-96.jpg 18B Glenavy Road-97.jpg 18B Glenavy Road-98.jpg 18B Glenavy Road-99.jpg 18B Glenavy Road-100.jpg 18B Glenavy Road-101.jpg 18B Glenavy Road-103.jpg 104.jpg 106.jpg 18B Glenavy Road-107.jpg 18B Glenavy Road-108.jpg 18B Glenavy Road-109.jpg 18B Glenavy Road-114.jpg 18B Glenavy Road-116.jpg 119.jpg 120.jpg 18B Glenavy Road-122.jpg 18B Glenavy Road-2.jpg glenavy road front 5.jpg garden.jpg garden3.jpg garden2.jpg glenavy road front 3.jpg glenavy road floorplan.jpg glenavy road floorplan2.jpg EE Rating

Location

Visit www.gerardmcclinton.co.uk for further details.